Ristrutturazione edilizia con cambio destinazione d'uso da discoteca ad alloggi a Diano Marina

Trattasi di ristrutturazione edilizia con cambio di destinazione d’uso di edificio un tempo adibito a discoteca, ristorante e locali accessori denominato “Tangò” nel Comune di Diano Marina.
L’edificio è situato nella parte bassa di Capo Berta, a una quarantina di metri dal mare in posizione leggermente sopraelevata con vista aperta su tutto il golfo.
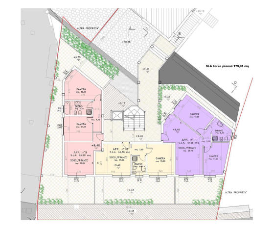
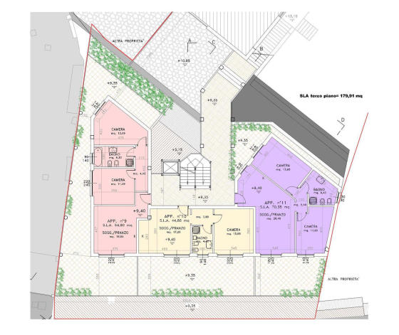
E’ stato realizzato un nuovo edificio costituito da cinque piani fuori terra, di cui il primo a destinazione commerciale e gli altri residenziali, e da un piano interrato al quale si accede dall’antistante Via Torino mediante una rampa carrabile.
L’opera è terminata nel 2018